Bureaux lumineux à louer - direct propriétaire
















Prix | 3 938€ |
Ville/Code postal | Ile de France Voir sur google map Hauts-de-Seine Courbevoie - 92400 |
Type d'annonce | Particulier Offre |
Vente/Location | A louer |
Surface | 114 m² |
Consommation énergétique | D 151 - 230 ![]() |
Émissions de gaz à effet de serre | B 6 - 10 ![]() |
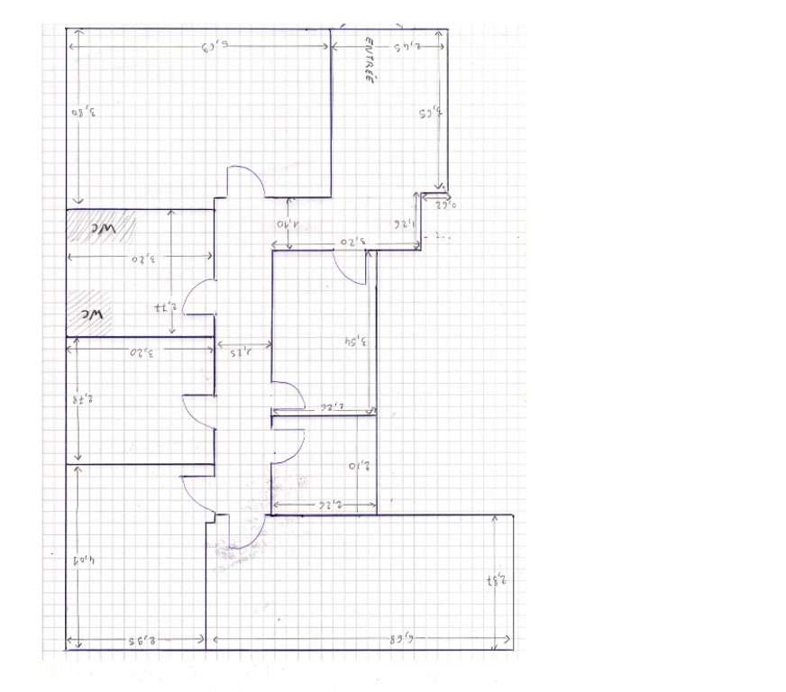
🏢 Surface : 114.60 m² (cloisonné actuellement, surface utile ≈ 104 m²)
Stationnement : 2 places de parking en sous-sol
Localisation : À seulement 50 m de la gare de Courbevoie – accès direct La Défense et Paris
📌 Description
En direct propriétaire (sans intermédiaire, sans frais d’agence), je propose à la location un plateau de bureaux cloisonné et tres lumineux de 114 m² situé en rez-de-chaussée, dans un environnement calme et verdoyant.
Les bureaux sont entièrement vitrés des deux côtés, offrant une belle luminosité et une vue dégagée sur 3 000 m² d’espaces verts non accessibles, garantissant sérénité et intimité.
🛠 Aménagement actuel
6 bureaux indépendants
Une entrée spacieuse (accueil / salle d’attente)
Une cuisine aménagée
Un double sanitaire avec 2 lavabos
2 places de parking privatives en sous-sol
✅ Atouts
Direct propriétaire → pas de frais d’agence
À 50 m de la gare de Courbevoie (La Défense 2 min, Saint-Lazare 10 min)
Bureaux lumineux, fonctionnels et calmes
Vue imprenable sur espace vert, rare à Courbevoie
Idéal professions libérales, cabinets, PME, start-ups
Bureaux lumineux à louer - direct propriétaire
- € p/h incall
- Courbevoie - 92400
Envoyer un email
Envoyer un message
Adresse email de l'annonceur
En contactant cet annonceur, vous acceptez les Conditions Générales d'Utilisation de Vivastreet.
Gagnez du temps à l'avenir
Accédez instantanément aux adresses email des annonceurs avec votre compte Vivastreet.
Créer un compteVous n'avez pas trouvé votre bonheur ?
< Retour aux résultatsEnvoyer un message
Adresse email de l'annonceur
En contactant cet annonceur, vous acceptez les Conditions Générales d'Utilisation de Vivastreet.
Gagnez du temps à l'avenir
Accédez instantanément aux adresses email des annonceurs avec votre compte Vivastreet.
Créer un compte