Terrain de 108 508 m2 avec PIP approuvé pour la construction...












Prix | 850 000€ |
Ville/Code postal | Etranger Voir sur google map Portugal |
Type d'annonce | Agence Offre |
Constructible | Constructible |
Surface | 108508 m² |
Terrain de 108 508 m2 avec PIP approuvé pour la construction de 34 931 m2 à Pegões-Gare, Montijo, Setúbal
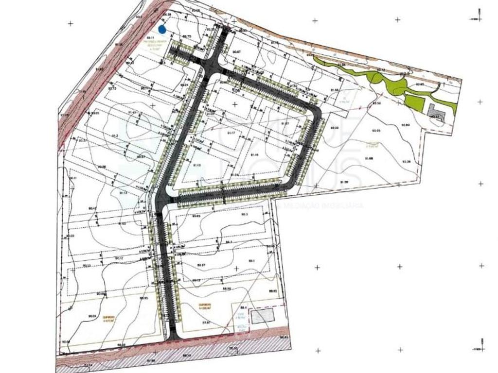
Excellent terrain de 108 508 m* **** *** m2 en DGT et 116 748 en PIP) avec PIP approuvé pour la construction de 34 931 m2 en entrepôts, commerce et/ou services en 19 lots indépendants d'une superficie totale de 59 381 m2.
Surface totale d'implantation maximale de 23 752,40 m2. La hauteur maximale du bâtiment est de 9 mètres. Les lots 16 à 19 seront déployés en bande et les autres lots seront isolés, avec une distance minimale de 9 mètres par rapport à la limite de lot.
Emplacement privilégié en face de l'EN10 et de la gare (marchandises et passagers) de Pegões-Gare.
Il est actuellement inoccupé ou inutilisé et avec un couvert d'arbres et d'arbustes principalement composé d'eucalyptus, de pins et d'un sous-couvert de buissons, présentant une forme principalement trapézoïdale avec la plus grande dimension - environ 380 m - orientation nord, et la plus petite dimension - environ 283 m - avec une orientation sud.
En dehors du PIP approuvé, une autre utilisation peut être donnée, selon le PDM.
La zone est actuellement classée par le PDM actuel comme un habitat mixte urbanisable de niveau IV (Pegões-Gare) pour lequel sont indiqués les paramètres de densité brute de 20 logements/ha et de densité nette (appliquée aux zones exclusivement destinées à l'habitation ou à d'autres usages urbains complémentaires) de 30 logements/ha. Ces valeurs se traduiront à leur tour par des paramètres d'occupation maximale du sol de 0,25 et d'utilisation de 0,45 et d'un nombre maximum d'étages de trois. Cependant, et nonobstant, si l'on considère l'emplacement du terrain dans une perspective territoriale étroite, par rapport à Pegões-Gare, ainsi que dans une perspective territoriale large, par rapport au territoire municipal, à celui de la péninsule de Setúbal et même à celui de l'AML, il est noté qu'il se trouve dans une situation tr
Terrain de 108 508 m2 avec PIP approuvé pour la construction...
- Constructible
- € p/h incall
- Portugal
Envoyer un email
Envoyer un message
Adresse email de l'annonceur
En contactant cet annonceur, vous acceptez les Conditions Générales d'Utilisation de Vivastreet.
Gagnez du temps à l'avenir
Accédez instantanément aux adresses email des annonceurs avec votre compte Vivastreet.
Créer un compteVous n'avez pas trouvé votre bonheur ?
< Retour aux résultatsEnvoyer un message
Adresse email de l'annonceur
En contactant cet annonceur, vous acceptez les Conditions Générales d'Utilisation de Vivastreet.
Gagnez du temps à l'avenir
Accédez instantanément aux adresses email des annonceurs avec votre compte Vivastreet.
Créer un compte