| Prix | 179 000€ |
| Ville/Code postal | Rhône-Alpes Voir sur google map Loire St Etienne St Etienne - 42000 |
| Type d'annonce | Particulier Offre |
| Neuf/Ancien | Ancien |
| Nbre de pièces | 6 pièce(s) |
| Consommation énergétique | D 151 - 230 |
| Émissions de gaz à effet de serre | D 21 - 35 |
| Surface | 178 m² |
| Prix/m² | 1 006 €/m² |
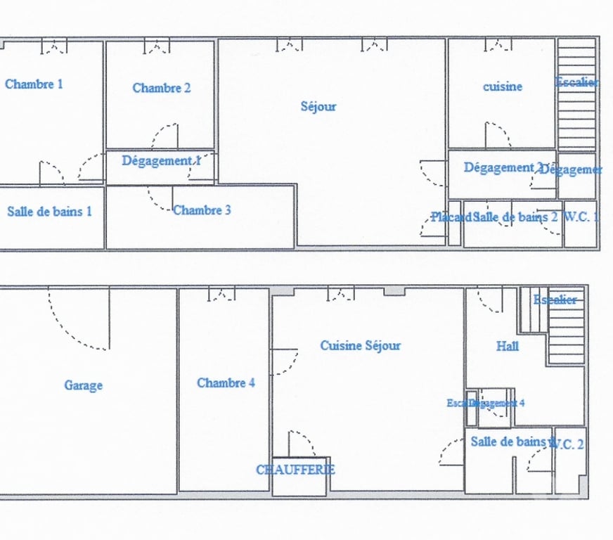
Maison de ville sur deux niveaux d'une surface totale de 178 m2 avec garage.
Comprenant un appartement en rez-de-chaussée de 50 m2 actuellement loué à 490 € charges comprises (locataire présent depuis presque 10 ans).
Celui-ci est composé d'un salon/salle à manger avec cuisine, d'une chambre de 14 m2 et d'une salle de bain avec un WC séparé.
Le second appartement de 98 m2 est accessible par un escalier au premier étage.
Celui-ci est composé d'une cuisine, d'un salon/salle à manger, d'une salle de bain avec WC séparé et de 3 chambres, dont une suite parentale avec salle de bain et WC.
Cette maison comprend également un garage attenant de 30 m2 avec portail électrique.
Le bien se situe dans une copropriété avec syndic bénévole, les charges de copropriétés s'élèvent à 46 € annuels. La copropriété est sécurisée par un portail électrique.
Classe énergétique D.
Montant estimé des dépenses annuelles d'énergie pour un usage standard : entre 2000 € et 2700 € par an. Prix moyens des énergies indexés sur l'année 2024.
Taxe foncière : 1940 €
Le bien est à proximité de toute commodité (arrêt de bus à 50 m, supermarché à 100 m, écoles et universités accessibles par les transports en commun).
Pour des photos supplémentaires vous pouvez me contacter directement et je vous en enverrais.
Agence s'abstenir, merci.
Maison 6 pièces 178m2
- € p/h incall
- St Etienne - 42000
Envoyer un email
Envoyer un message
Adresse email de l'annonceur
En contactant cet annonceur, vous acceptez les Conditions Générales d'Utilisation de Vivastreet.
Gagnez du temps à l'avenir
Accédez instantanément aux adresses email des annonceurs avec votre compte Vivastreet.
Créer un compteVous n'avez pas trouvé votre bonheur ?
< Retour aux résultatsEnvoyer un message
Adresse email de l'annonceur
En contactant cet annonceur, vous acceptez les Conditions Générales d'Utilisation de Vivastreet.
Gagnez du temps à l'avenir
Accédez instantanément aux adresses email des annonceurs avec votre compte Vivastreet.
Créer un compte